Hua Hin Property Developments
HIGHLAND VILLAS - *SOLD OUT - RESALES AVAILABLE*
Contact us about this development
Project Description
Highland Villas
These pool villas are built and designed according to European building standards. Absolutely top quality when it comes to the standards of construction, optimal living pleasure, efficient energy management, security and safety.
Each Private Pool Villa is equipped with:-
- Private Swimming pool 60 m2 (12m x5 m) -
- Inverter Air Conditioners in each room (living room 2 pieces) -
- Inverter refrigerator -
- Dishwasher -
- Built-in Microwave and oven -
- Ceiling fans -
- Inverter Water pump -
- Solar cells on the roof 6kW -
- 150 litre Hot water boiler - which is supplied by the heat of the air conditioning -
- Electric stainless steel sliding gate -
- Built-in bedroom furniture -
- CCTV system -
- Electronic security alarm system -
- Double glazing UPVC windows and doors -
- Double Roof Insulation-
- Cut Lava tiles for Carport and Swimming pool
Nestled in the beautiful green surroundings of Mon Mai, with mountain view in the distance lies the property project Highland Villas. Here you will enjoy the serene tranquility and beautiful landscapes. All shopping and restaurant facilities at your fingertips. The unique location to live peacefully with all possibilities around you.
Only 5 mins from Black Mountain Golf Course, Water Park, Wakeboard centre, International school and By-pass and only 12 minutes drive to Hua Hin Centre and beaches.
Project Information
| Total land size area of project | 5 Rai |
|---|---|
| Total number of plots on project | 8 Approx |
| Number of different villa styles | 2 |
| Villa Price range | 7,800,000 THB – 9,900,000 THB |
| Villa Living area range | 210 sqm - 270 sqm |
| Villa bedrooms range | 3 - 3 |
| Villa Land area range | 820 sqm - 1,204 sqm |
Villas
-














TYPE A1
Private Pool Villa Highland A1
The pool villas are built and designed according to European building standards. Absolute top quality when it comes to the terrain of construction, optimal living pleasure, efficient energy management, security and safety.
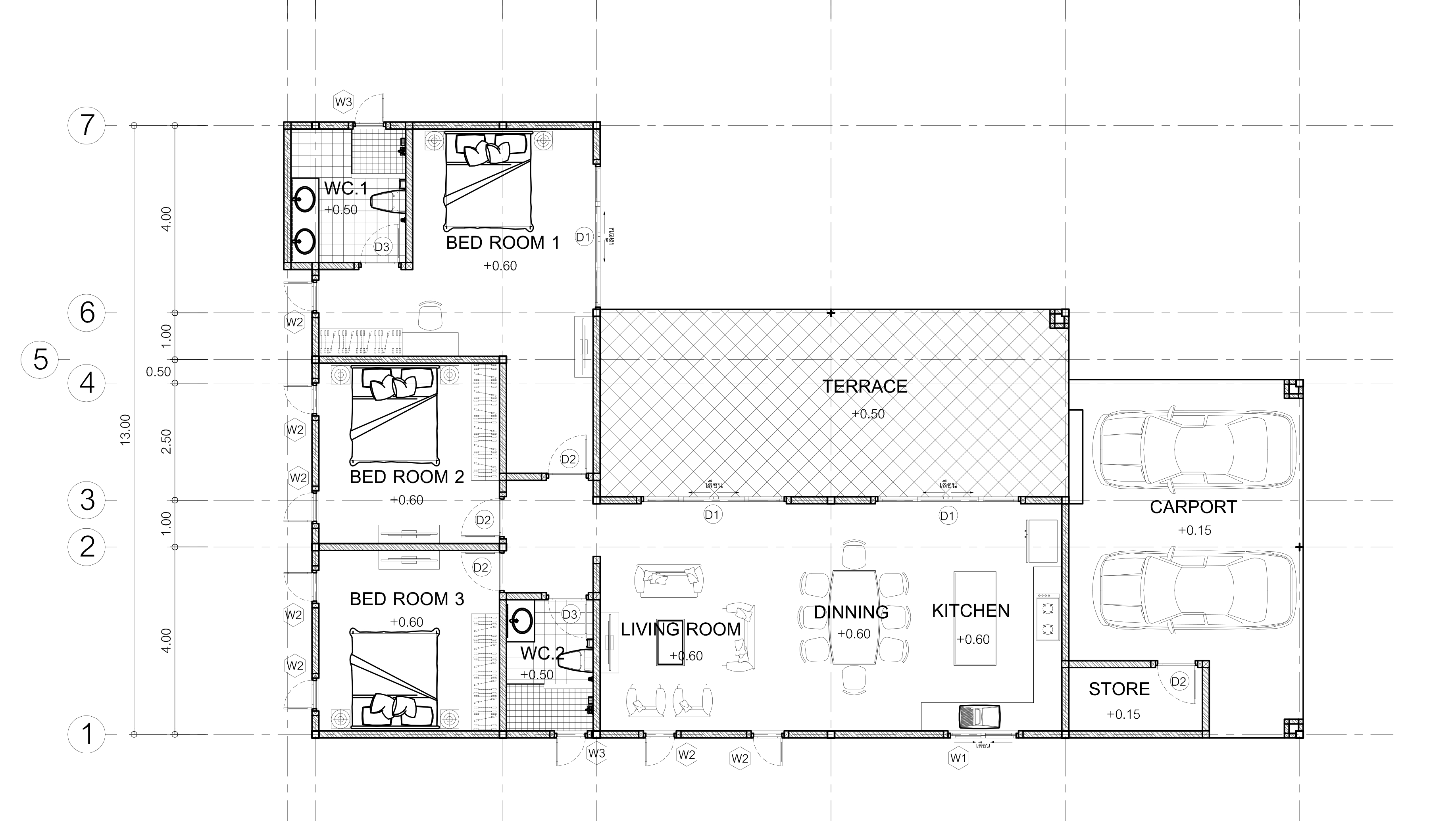
The Private Pool Villa is equipped with inverter Air Conditioners in each room (living room 2 pieces) - Inverter refrigerator - Dishwasher - Built-in Microwave and oven - Ceiling fans - Inverter Water pump - Solar cells on the roof 6kW - Swimming pool 60m2 (12x5m) - 150 liter Hot water boiler - wich is supplied by the heat of the air conditioning - electric stainless steel sliding gate - built-in bedroom furniture - CCTV system - electronic security alarm system - double glazing UPVC windows and doors - Double Roof Insulation. Cut Lava tiles for Carport and Swimming pool.
Furniture Package Included
- Living Area: 270m2
- Bathrooms: 3
- Bedrooms: 3
- Living room: 60M2
- Swimming pool: 12 x 5M / 60M2
- Airconditioners: 5 (Inverter)
- Cieling fans: 7
- Parking Type: Carport for 2 Cars
-



TYPE A2
-
Private Pool Villa Highland A2
The pool villas are built and designed according to European building standards. Absolute top quality when it comes to the terrain of construction, optimal living pleasure, efficient energy management, security and safety.
The Private Pool Villa is equipped with inverter Air Conditioners in each room (living room 2 pieces) - Inverter refrigerator - Dishwasher - Built-in Microwave and oven - Ceiling fans - Inverter Water pump - Solar cells on the roof 5kW - Swimming pool 45m2 (10x4.5m) - 150 liter Hot water boiler - wich is supplied by the heat of the air conditioning - electric stainless steel sliding gate - built-in bedroom furniture - CCTV system - electronic security alarm system - double glazing UPVC windows and doors - Double Roof Insulation.
- Furniture Package Included
- Plot Size: (1) 820M²
- Living Area: 210m2
- Bathrooms: 3
- Bedrooms: 3
- Living room: 50M2
- Swimming pool: 10 x 4.5M / 45M²
- Airconditioners: 5 (Inverter)
- Cieling fans: 4
- Parking Type: Carport for 2 Cars
-
Gallery
Masterplan
Location
Nestled in the beautiful green surroundings of Mon Mai, with mountain view in the distance lies the property project Highland Villas. Here you will enjoy the serene tranquility and beautiful landscapes. All shopping and restaurant facilities at your fingertips. The unique location to live peacefully with all possibilities around you.
Only 5 mins from Black Mountain Golf Course, Water Park, Wakeboard centre, International school and By-pass and only 12 minutes drive to Hua Hin Centre and beaches.
Price list
Price : A1 from 9.9 M THB
Price : A2 from 7.8 M THB
- Plot Sizes:-
- (1) 1096M²
- (2) 944M²
- (3) 820M²
- (4) 1080M²
- (5) 868M²
- (6) 832M²
- (7) 892M²
- ( 8) 1204M²
Payment plans
N/A